top of page
Create Your First Project
Start adding your projects to your portfolio. Click on "Manage Projects" to get started
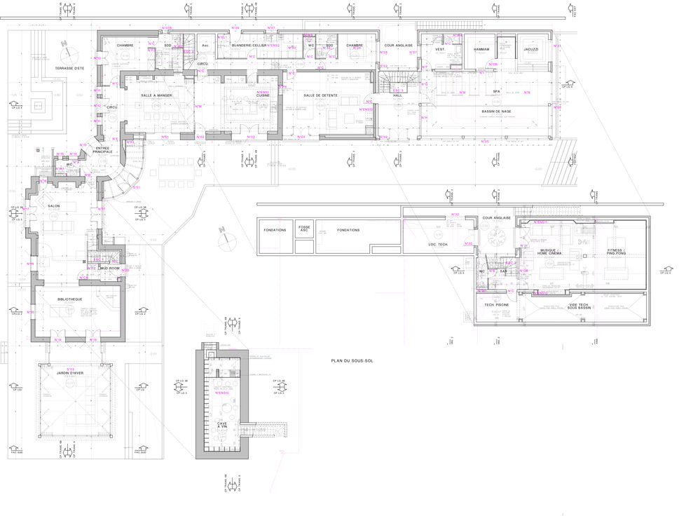
Maison individuelle La Boissière Ecole
Date
2018
Rôle
Atelier 2A+ - Chef de projet de la conception au PC + DCE
Restructuration lourde et extension d'une maison individuelle Construction de trois maisons neuves à la Boissière Ecole
















bottom of page

